)
Komische Oper,
Berlin (D)
Komische Oper,
Berlin (D)
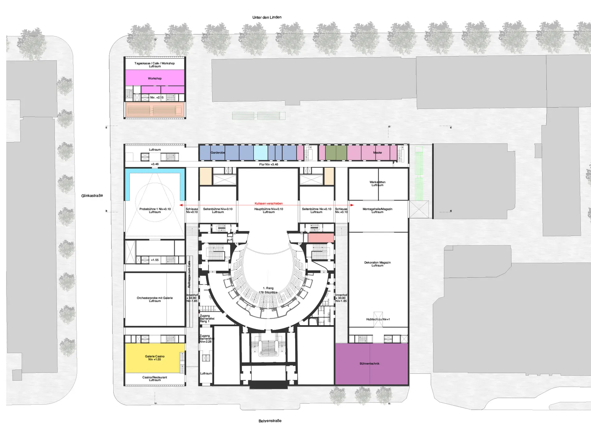
Extension, réorganisation et transformation des bâtiments existants
Nous avons complété le bâtiment principal relativement bas de la Komische Oper par un corps de bâtiment qui se présente comme un « complément symétrique » de l'installation de Kunz Nierade. Ce corps de bâtiment reprend la hauteur de l'attique et la longueur du bâtiment existant, mais s'en démarque par une cour intérieure étroite et longue. Afin d'unifier l'ensemble de la situation, nous avons ajouté un deuxième volume qui se glisse au-dessus du corps de bâtiment bas depuis l'angle Unter den Linden / Glinkastrasse. Il en résulte un ensemble qui a été développé à partir du lieu et des relations fonctionnelles et qui entre en dialogue avec le bâtiment existant. La présence et la rigueur du concept global confèrent à la Komische Oper une nouvelle identité et le mettent en valeur dans l'espace urbain.
)